【钢结构·设计】“黑盒子”体量,“漂浮”的钢结构美术馆建筑
其理念是设计一个像大都市一样的艺术博物馆,在那里各种各样的人和活动都会相交。这是一个可以被描述为“城市空间”的博物馆,任何人都可以在这里随意参观、学习、放松、享受、受到启发和分享知识。
The concept is to design an art museum like a metropolis where a variety of people and activities intersect. It is a museum that can be described as an “urban space”, where anyone can casually visit, learn, relax, enjoy, be inspired, and share knowledge.
大阪中之岛是一个位于多岛河和土佐里河两条河流之间的沙洲,自中世纪以来一直是贸易和商业活动的繁荣地区。此外,该站点是中之岛东西两侧的重要连接点,因此,连接人流并引导他们走向各个方向非常重要。出于这个原因,建筑没有“正面”来创造一条特定的路线,而是设计了一系列入口来迎接四面八方的人们。
Osaka Nakanoshima, a sandbank lying between two rivers, the Dojima River and the Tosabori River, has been a thriving area for trading and commercial activities since the Middle Ages. Also, this site was an important nexus between the east and west sides of Nakanoshima, thus, making it important to connect the flow of people and guide them in all directions. For this reason, instead of having a “front” of the building to create a specific route, a series of entrances were designed to welcome people in all directions.
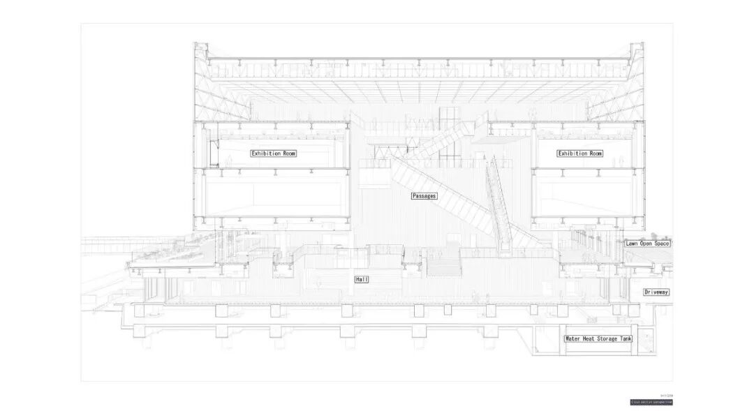
为应对该地区河流泛滥的风险,艺术品相关储藏室位于三楼及以上。另一方面,1楼和2楼是公共空间,可供展览观众以外的人使用。五层钢框架建筑由主博物馆建筑和停车场建筑组成,主博物馆建筑设计为基础隔震结构,停车场建筑设计为抗震结构,通过伸缩缝集成。
In preparation for the risk of river flooding in this area, artwork-related storage rooms are positioned on the 3rd floor and above. On the other hand, the 1st and 2nd floors are public spaces that can be used by people other than exhibition visitors. The five-story steel-framed building is composed of the main museum building, designed with a base-isolated structure, and the parking lot building, designed with an earthquake-resistant structure, which is integrated through expansion joints.
1楼和2楼的外部空间与周围景观相连,有助于提高城市的可达性。为了实现无缝连接,必须消除与周围场地的高度差。因此,在1楼和2楼的“排版”之上,设计了一个具有巨大方形立面的清晰几何“建筑”,以将博物馆表现为城市中的漂浮结构。
The external spaces on the 1st and 2nd floors are continuous to the surrounding landscape, being conscious of enhancing urban accessibility. In order to make a seamless connection, it was necessary to eliminate the height difference to the surrounding site. As a result, on top of the “typography” of the 1st and 2nd floors, a clear geometric “architecture” with massive square facades was designed to express the museum as a floating formation in the city.
第二层通过走道平台与周围的公共设施相连。一条连接走道计划进一步延伸到大楼的西侧,有助于社区未来的活力和方便出行。通过以非常简单的形式设计这些复杂的方面,我们的目标是不断探索当今设计架构的关键因素。
The 2nd floor is connected to the surrounding public facilities by a walkway deck. A connecting walkway is planned to be further extended to the west side of the building, contributing to the future liveliness of the neighborhood area and the ease of getting around. By designing these complex aspects embedded in a very simple form, we aim to keep exploring what is the key factor in designing architecture toda









